
Przedstawiamy Państwu Nowość jakim jest piecyk Defro Home Orbis Extento
Defro Home Orbis Extento to nowość na rynku pieców, która już teraz przyciąga uwagę wielu klientów. Ten nowoczesny piec występuje w dwóch wersjach: Defro Home Orbis Extento H i Defro Home Orbis Extento F. Pierwsza z nich ma półkę w górnej części kominka oraz ceramikę akumulacyjną na spodzie, a druga – zabudowaną półkę.
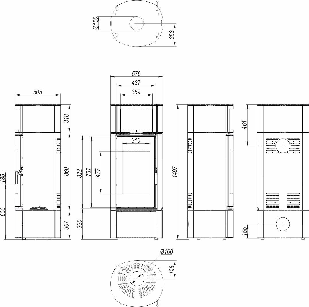
Moc nominalna Defro Home Orbis Extento wynosi 9 kW, a zakres mocy mieści się w przedziale od 3,6 do 10,8 kW. Piec ten należy do klasy efektywności energetycznej A, co oznacza, że jest bardzo oszczędny w eksploatacji. Średnica czopucha wynosi 150 mm, a sprawność pieca to 75,5%. Emisja CO przy 13% O2 to tylko 0,09%, co świadczy o tym, że Defro Home Orbis Extento jest bardzo przyjazny dla środowiska.
Temperatura spalin to 310°C, a ciąg kominowy wynosi 12±2 Pa. Maksymalna długość polan, jakie można spalać w tym piecu, to 400 mm, a średnica dolotu powietrza to 125 mm. Gwarancja na Defro Home Orbis Extento wynosi 5 lat, a masa pieca to około 200 kg.
Specyfikacja:
Moc nominalna
9 kW
Zakres mocy
3,6 – 10,8 kW
Klasa efektywności energetycznej
A
Średnica czopucha
150 mm
Sprawność
75,5%
Emisja CO przy 13% O2
0,09%
Temperatura spalin
310°C
Ciąg kominowy
12±2 Pa
Maksymalna długość polan
400 mm
Średnica dolotu powietrza
125 mm
Gwarancja
5 lat
Masa
~200 kg
Wyposażenie opcjonalne – za dopłatą
czarny ceramiton, kolor (czerwony, biały, złoty, brązowy, szary), srebrna klamka
Defro Home Orbis Extento występuje w 2 wersjach:
- Defro Home Orbis Extento H (z półką w górnej części piecyka i ceramiką akumulacyjną
na spodzie) - Defro Home Orbis Extento F (z zabudowaną półką)
Ceny brutto:
– Defro Home Orbis Extento H 10 050,00 zł
– Defro Home Orbis Extento F 9 950,00 zł
Defro Home Orbis Extento to piec, który z pewnością przypadnie do gustu wszystkim, którzy cenią sobie nowoczesne rozwiązania i wysoką jakość wykonania. To produkt, który łączy w sobie funkcjonalność i estetykę, a przy tym jest bardzo oszczędny w eksploatacji. Jeśli szukasz pieca, który zapewni Ci komfortowe ogrzewanie w sezonie jesienno-zimowym, warto zainteresować się ofertą Defro Home Orbis Extento.








0 komentarzy