
Prezentujemy Państwu najnowszy kominek z renomowanej serii INTRA „U” – Defro Home Intra XSM U G. To wyjątkowe urządzenie, wyposażone w symetryczne, potrójne przeszklenie, stanowi kontynuację niezawodnej efektywności i estetyki serii Defro Home Intra. Dzięki zaawansowanej technologii spalania drewna, ten kominek łączy w sobie wysokie parametry techniczne z troską o naturalne środowisko.
Zaawansowana Technologia
1. Symetryczne, Potrójne Przeszklenie
Wkład kominka Defro Home Intra XSM U G wyróżnia się symetrycznym, potrójnym przeszkleniem, co nie tylko podkreśla jego estetykę, ale także przekłada się na niezawodność i efektywność spalania.
2. Perfect UP – Cicha i Bezawaryjna Praca
Innowacyjny system podnoszenia Perfect UP gwarantuje cichą i bezawaryjną pracę kominka. To autorskie rozwiązanie, które podnosi standardy obsługi urządzenia.
Eko-Design i Estetyka
1. Ekologia i Design
Seria DEFRO HOME INTRA została stworzona z myślą o harmonii pomiędzy ekologią a designem. Wkłady kominkowe tej serii doskonale sprawdzają się podczas palenia ciągłego, skutecznie ogrzewając cały dom. Nowoczesna konstrukcja i szczelne palenisko pozwalają na korzystanie z kominka nawet w domach pasywnych z rekuperacją.
2. Oszczędność Energii i Bezawaryjna Obsługa
Autorskie rozwiązania zastosowane w serii DEFRO HOME INTRA gwarantują oszczędność energii oraz bezawaryjną obsługę urządzenia, co czyni go nie tylko efektywnym, ale i przyjaznym dla środowiska.

Główne Zalety INTRA XSM U G
- Klasa Efektywności Energetycznej: A+
- System Gilotyny Perfect UP
- Dedykowana Maskownica do Wkładu
- Okładziny Paleniska z Trwałego Ceramitonu
- Dostępne w dwóch odcieniach: jasnym i czarnym.
- Rama Nośna z Blendą (wkrótce dostępna)
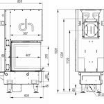
Specyfikacja Techniczna
- Moc Nominalna: 10 kW
- Zakres Mocy: 4-12 kW
- Klasa Efektywności Energetycznej: A+
- Średnica Czopucha: 200 mm
- Sprawność: 81%
- Emisja CO przy 13% O2: 0,112%
- Temperatura Spalin: 250°C
- Ciąg Kominowy: 12±2 Pa
- Maksymalna Długość Polan: 500 mm
- Średnica Dolotu Powietrza: 125 mm
- Pole Czynne Wlot: 500 cm²
- Pole Czynne Wylot: 700 cm²
- Gwarancja: 5 lat
- Masa: ~325 kg
Wyposażenie Opcjonalne
- Czarny Ceramiton
- Wyjmowany Uchwyt do Gilotyny
- Czarna Klamka
Dzięki tym opcjom kominek Defro Home Intra XSM U G staje się jeszcze bardziej personalizowany, dostosowując się do indywidualnych preferencji estetycznych użytkownika. Oferuje nie tylko doskonałą wydajność, ale także elegancję i styl w jednym.
Wprowadź do swojego domu nowoczesność, efektywność i ekologię z kominkiem Defro Home Intra XSM U G. Oczekuj więcej od swojego systemu ogrzewania!
Sprawdź nasze kominki DEFRO HOME!




0 komentarzy